509 Red Lady Avenue, 223, Crested Butte, CO, 81224
MLS #828721
| Sold for $500,000
2 Bathrooms
555 Square Feet
About 509 Red Lady Avenue
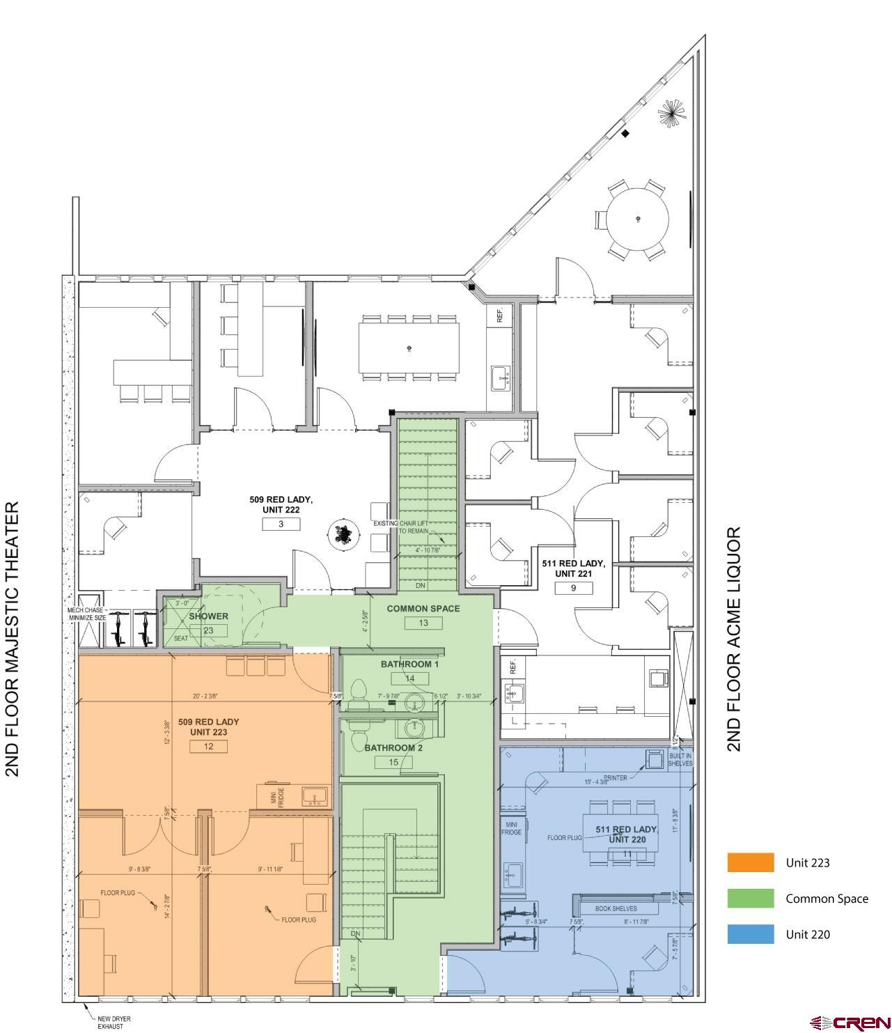
Prime Commercial Office Space in Downtown Crested Butte Welcome to 509 Red Lady, Unit 223 - a fully remodeled professional office space completed in December 2024, offering 555 square feet in the heart of Crested Butte. This thoughtfully designed suite includes three separate rooms and two entrances, allowing the space to function seamlessly as one large office or be divided into two independent spaces. With the option to sublet one room, the layout provides maximum flexibility for a variety of business needs. The interior blends modern finishes with warm accents, featuring polished concrete floors, oak window sills, a striking oak accent wall with cove lighting, and soaring 13-foot ceilings with exposed framing. Expansive steel and glass double-paned doors and windows spread natural light throughout the space, while premium soundproofing using mass loaded vinyl and RC channel ensures quiet and privacy. A private kitchenette adds convenience, and a brand-new forced-air heating and cooling system installed in 2024 offers year-round comfort. The space is also hardwired with CAT6, making it perfectly equipped for today’s business demands. Beyond the private office, tenants enjoy 468 square feet of shared common space, including two bathrooms, a storage closet, and a newly refurbished stair lift at the front entrance. The building offers both a large public parking lot at the front and private parking at the rear, making access effortless for clients and staff. Monthly HOA dues are just $234.86 and the annual taxes are $1,864. Unit 223 is a rare opportunity to secure a turnkey commercial space in one of Crested Butte’s most desirable locations. Whether envisioned as a full-time headquarters, a collaborative creative environment, or a smart investment property, this office combines premier location, thoughtful design, and unmatched functionality. *several photos are virtually staged with furniture*
Listed by Signature Properties Ebner & Associates, LLC | Sold by Signature Properties Ebner & Associates, LLC
Kiley Flint
Real Estate Advisor
LIV Sotheby’s International Realty
401 Elk Avenue | PO Box 210
Crested Butte, CO 81224
Jaima Giles-Alsum
Real Estate Advisor
LIV Sotheby’s International Realty
401 Elk Avenue | PO Box 210
Crested Butte, CO 81224
Interior Features
- Bathrooms: 2
- Size: 555 Square Feet

The data relating to real estate for sale on this web site comes in part from the Internet Data Exchange (IDX) program of Colorado Real Estate Network, Inc. (CREN), © Copyright 2025. All rights reserved. All data deemed reliable but not guaranteed and should be independently verified. This database record is provided subject to “limited license” rights. Duplication or reproduction is prohibited.
Real Estate listings held by companies other than Crested Butte Collection contain that Company's name.
Data last updated on: 2026-01-30 00:06:36

