511 Red Lady Avenue, 220, Crested Butte, CO, 81224
MLS #828722
| Sold for $310,000
2 Bathrooms
320 Square Feet
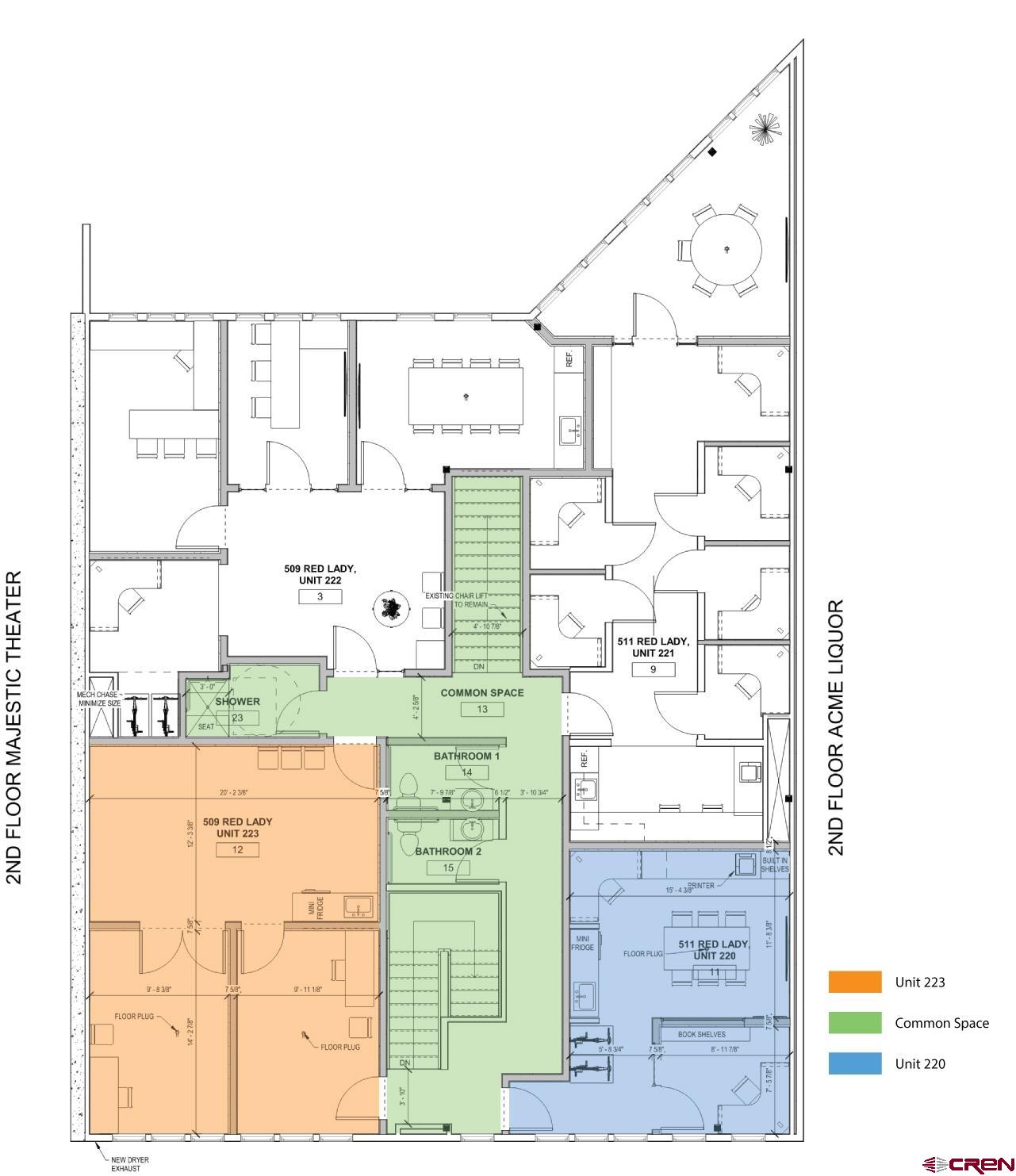
About 511 Red Lady Avenue
Professional Office Space in Premier Crested Butte Location. Welcome to 511 Red Lady, Unit 220 - a fully remodeled office space completed in December 2024 and thoughtfully designed for both professionalism and comfort. Offering 320 square feet, this unit features a private office and a large conference room with ample space for additional desks, making it ideal for a wide range of business uses. Custom cabinetry provides abundant storage, while a private kitchenette and an oak accent wall with cove lighting add both convenience and sophistication. The space is finished with polished concrete floors, oak window sills, and drywall returns, all highlighted by 13-foot ceilings with exposed framing and high-end light fixtures. Natural light filters throughout the office thanks to steel and glass double-paned doors and windows, while top-of-the-line soundproofing ensures quiet and privacy. A brand-new forced-air heating and cooling system installed in 2024 and hardwired CAT6 connectivity make the unit modern, efficient, and move-in ready. Beyond the private suite, tenants enjoy 468 square feet of shared common space, which includes two bathrooms, a storage closet, and two entrances, one of which is equipped with a newly refurbished stair lift at the front. The building’s location offers easy access with a large public parking lot in front and private parking behind. Monthly HOA dues are $183.44 and the annual taxes are $1,423. Unit 220 presents a rare opportunity to own a turnkey professional office in the heart of Crested Butte. With its thoughtful design, premier finishes, and unbeatable location, it is the perfect setting for a business seeking both function and style. *several photos are virtually staged with furniture*
Listed by Signature Properties Ebner & Associates, LLC | Sold by Signature Properties Ebner & Associates, LLC
Kiley Flint
Real Estate Advisor
LIV Sotheby’s International Realty
401 Elk Avenue | PO Box 210
Crested Butte, CO 81224
Jaima Giles-Alsum
Real Estate Advisor
LIV Sotheby’s International Realty
401 Elk Avenue | PO Box 210
Crested Butte, CO 81224
Interior Features
- Bathrooms: 2
- Size: 320 Square Feet

The data relating to real estate for sale on this web site comes in part from the Internet Data Exchange (IDX) program of Colorado Real Estate Network, Inc. (CREN), © Copyright 2025. All rights reserved. All data deemed reliable but not guaranteed and should be independently verified. This database record is provided subject to “limited license” rights. Duplication or reproduction is prohibited.
Real Estate listings held by companies other than Crested Butte Collection contain that Company's name.
Data last updated on: 2025-10-27 18:28:59

